Промышленные здания

Project image

Особенности проектирования промышленных зданий

Промышленные здания - это сложный и многоэтапный процесс, направленный на создание функциональных, безопасных и экономически эффективных производственных процессов

1

Функциональность:

  • Здание должно соответствовать технологическим процессам производства
  • Учитываются требования к размещению оборудования, хранению сырья и готовой продукции
2

Технология производства:

  • Планировка производственных линий и оборудования
  • Обеспечение специализированными системами инженерных систем (пневмотранспорт, газоснабжение, системы очистки воздуха)
3

Гибкость планировки:

  • Возможность перепланировки под изменяющиеся производственные нужды
  • Использование модульных конструкций
4

Безопасность:

  • Соблюдение норм пожарной, экологической и промышленной безопасности
  • Организация аварийных выходов и систем пожаротушения
5

Энерго-эффективность:

  • Использование современных материалов и технологий для снижения энергопотребления
  • Внедрение систем рекуперации тепла
    и использования альтернативных источников энергии
6

Логистика:

  • Удобное расположение подъездных путей, погрузочных зон и складов
  • Минимизация перемещений внутри здания

1

2

3

4

5

Технология производства

Проектирование технологии производства включает в себя выбор и размещение оборудования, разработку технологических процессов и методов, а также определение необходимых ресурсов для эффективного производства изделий

Что мы предлагаем:
/01

Анализ технологического процесса:

Изучение этапов производства, их последовательности и взаимосвязи

Определение необходимого оборудования, сырья и материалов

Учет особенностей выпускаемой продукции (габариты, вес, требования к условиям производства)

/02

Планировка производственных зон:

Оптимизация размещения оборудования для минимизации перемещений сырья и готовой продукции

Создание логистических схем (погрузка, разгрузка, транспортировка внутри цеха

Учет требований к безопасности и эргономике рабочих мест

/03

Учет специфики производства:

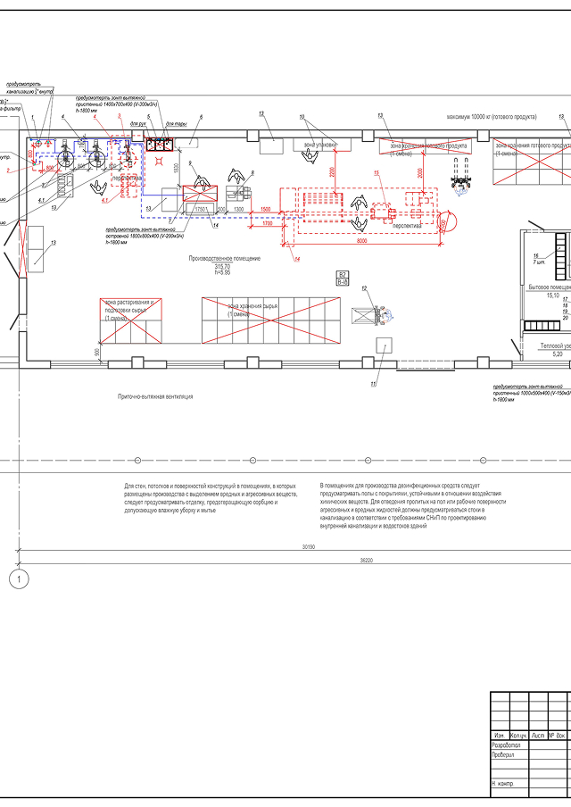
Соблюдение санитарных норм, организация систем мойки и дезинфекции

Обеспечение взрывобезопасности, организация систем вентиляции и очистки воздуха

Учет вибраций, нагрузок на перекрытия, организация систем удаления отходов (стружка, масла)

/04

Гибкость и масштабируемость:

Проектирование с учетом возможного расширения производства или изменения ассортимента продукции

Использование модульного оборудования и универсальных решений

/05

Энергоэффективность:

Оптимизация энергопотребления технологического оборудования

Внедрение систем рекуперации тепла и использования вторичных ресурсов

Планировочные решения

Планировочные решения связаны с организацией внутреннего пространства здания и его взаимодействием с внешней инфраструктурой. Они должны учитывать технологические процессы, логистику, безопасность и комфорт персонала

Что мы предлагаем:
/01

Функциональное зонирование:

Разделение здания на зоны в соответствии с производственными процессами (цеха, склады, административные помещения)

Учет взаимосвязи между зонами (например, сырье должно поступать на склад, а затем в цех)

/02

Оптимизация логистики:

Минимизация перемещений сырья, материалов и готовой продукции

Организация удобных подъездных путей, погрузочно-разгрузочных зон

Учет требований к транспортировке (например, для крупногабаритных изделий)

/03

Гибкость планировки:

Возможность перепланировки под изменяющиеся производственные нужды

Использование модульных конструкций и универсальных пространств

/04

Эргономика и безопасность:

Создание комфортных условий для персонала (освещение, вентиляция, температурный режим)

Организация аварийных выходов, эвакуационных путей

Учет требований к безопасности (например, зонирование взрывоопасных участков)

/05

Интеграция инженерных сетей:

Учет расположения коммуникаций (электричество, вода, вентиляция)

Оптимизация прокладки сетей для минимизации затрат

/06

Взаимодействие с внешней инфраструктурой:

Учет расположения подъездных путей, железнодорожных веток, инженерных сетей

Организация благоустройства территории (парковки, освещение, озеленение)

Конструктивные решения

Конструктивные решения определяют несущую способность здания, его устойчивость к нагрузкам и внешним воздействиям. Они должны обеспечивать надежность, долговечность и экономическую эффективность

Что мы предлагаем:
/01

Выбор типа конструкций:

Каркасные здания: металлический или железобетонный каркас, который позволяет создавать большие пролеты и гибкую планировку.

Бескаркасные здания: используются для небольших объектов или складов (например, арочные конструкции)

Комбинированные конструкции: сочетание разных материалов (металл, железобетон, сэндвич-панели)

/02

Расчет нагрузок:

Учет постоянных нагрузок (вес конструкций, оборудования)

Учет временных нагрузок (снег, ветер, вибрации от оборудования)

Учет особых нагрузок (сейсмические воздействия, взрывы)

/03

Фундаменты:

Выбор типа фундамента (ленточный, свайный, плитный) в зависимости от грунтов и нагрузок

Учет особенностей оборудования (вибрации, динамические нагрузки)

/04

Перекрытия и покрытия:

Использование железобетонных плит, металлических ферм или легких сэндвич-панелей

Учет требований к тепло- и звукоизоляции

/05

Кровля:

Выбор материалов (металлопрофиль, мембраны, мягкая кровля)

Учет требований к водоотведению и теплоизоляции

/06

Стены:

Использование сэндвич-панелей, кирпича, железобетона

Учет требований к теплоизоляции, звукоизоляции и пожарной безопасности

/07

Учет специфики производства:

Для химической промышленности — использование коррозионно-стойких материалов

Для пищевой промышленности — гладкие поверхности, устойчивые к влаге и дезинфекции

Для машиностроения — усиленные конструкции для тяжелого оборудования

/08

Экономическая эффективность:

Оптимизация затрат на материалы и строительство

Использование современных технологий (например, быстровозводимые конструкции)

наши объекты

Возведение производственного здания с АБК
Возведение производственного здания с АБК